loader-image
temperature icon 14°C
Qualidade do Ar Qualidade do Ar

PIEP | Acessibilidades 360 | Equipamentos Municipais

Nove intervenções relativas a projetos de acessibilidades a serviços públicos municipais
Acessibilidades 360 - EB Brejos de Clérigo

CONSIGNAÇÃO

Fevereiro de 2025

CONCLUSÃO

Novembro de 2025

INVESTIMENTO

66 809,63 € (IVA incluído)

GÉNERO

Empreitada.
Obra adjudicada a Oleiferro – Serralharia e Construção, Lda.

Vantagens
da Intervenção

Com estas obras de acessibilidades, os acessos a estes edifícios – Escolas, Edifício Ciprestes e Complexo de Atletismo – ficam assegurados ao nível do piso térreo e da aproximação aos mesmos

Resumo
da Intervenção

A presente empreitada refere-se a nove intervenções relativas a projetos de acessibilidades a serviços públicos municipais, nomeadamente, a sete escolas do concelho de Setúbal, a um edifício de Serviços Técnicos Municipais e ao Complexo Municipal de Atletismo. Os projetos estão individualizados e a cada um corresponde um Tomo. Assim, adiante serão designados da seguinte forma e pela ordem que se segue:

• TOMO I – ESCOLA BÁSICA DE VILA NOGUEIRA DE AZEITÃO
• TOMO II – ESCOLA BÁSICA Nº1 E JARDIM DE INFÂNCIA DE BREJOS DE CLÉRIGO
• TOMO III – ESCOLA BÁSICA E JARDIM DE INFÂNCIA DE VENDAS DE AZEITÃO
• TOMO IV – ESCOLA BÁSICA Nº1 DO FARALHÃO
• TOMO V – ESCOLA BÁSICA Nº4 DOS PINHEIRINHOS
• TOMO VI – ESCOLA BÁSICA Nº7 DA FONTE DO LAVRA
• TOMO VII – ESCOLA BÁSICA DE VILA FRESCA DE AZEITÃO
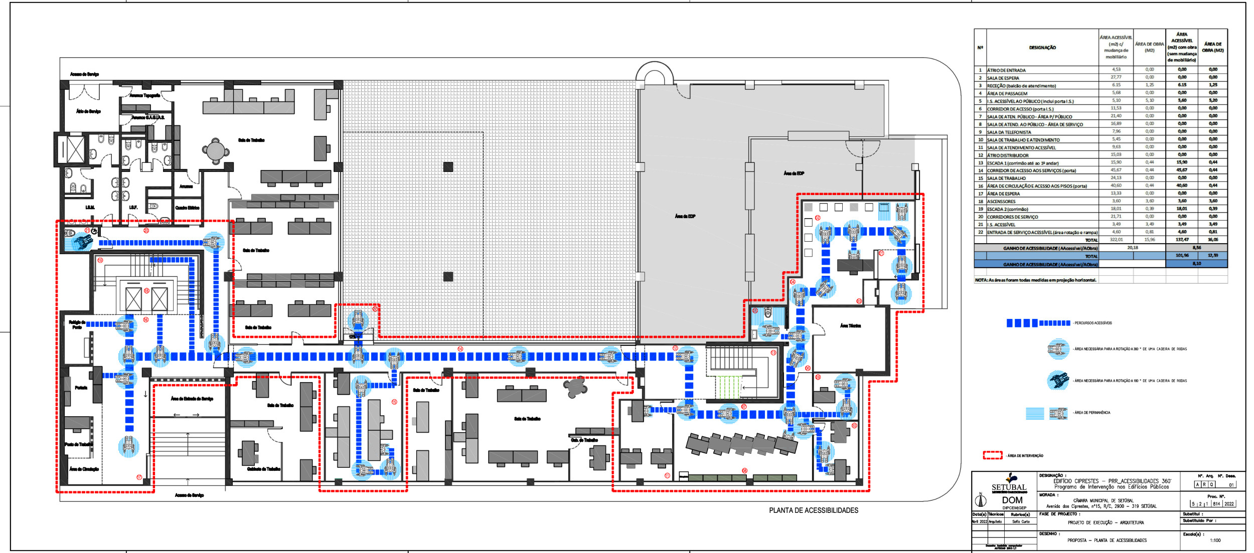
• TOMO VIII – EDIFÍCIO DOS SERVIÇOS TÉCNICOS DA CMS – EDIFÍCIO CIPRESTES
• TOMO IX – COMPLEXO MUNICIPAL DE ATLETISMO DE SETÚBAL

Trata-se de uma empreitada de obras única, pelo número e simplicidade das intervenções a efetuar em cada um destes equipamentos municipais, designadamente, execução de rampas de acesso nas sete escolas acima referenciadas e pequenas intervenções de acessibilidades para pessoas com mobilidade reduzida no edifício dos Serviços Técnicos Municipais adiante designado por Edifício Ciprestes e no Complexo Municipal de Atletismo de Setúbal. A presente intervenção é parte integrante da candidatura da Câmara Municipal de Setúbal ao Programa de Intervenção nos Edifícios Públicos (PIEP), integrado na Componente 3 – Respostas Sociais, Investimento RE-C03-i02: Acessibilidades 360°, no âmbito do PRR, no período de programação de 2021-2025. O PIEP visa a promoção da acessibilidade para pessoas com mobilidade condicionada no acesso aos serviços públicos, mediante aplicação das Normas Técnicas de Acessibilidade (NTA) previstas em Anexo ao Decreto-Lei n.º 163/2006, de 8 de agosto, na sua redação atual, e tem o objetivo de apoiar a intervenção em edifícios públicos. Esta intervenção responde ao definido em sede de candidatura, nomeadamente na organização das componentes de projeto e desenvolvimento das mesmas. Em sede de Estudo Prévio foi realizada a análise das Barreiras à Acessibilidade pedonal tendo as propostas sido orientadas pela implantação das Normas Técnicas de Acessibilidade de acordo com o Aviso da Candidatura.

Objetivos gerais
Garantir a acessibilidade a todas as pessoas que se dirijam às escolas, ao Edifício Ciprestes e ao Complexo de Atletismo de Setúbal, incluindo alunos, ou o público em geral, e funcionários com mobilidade condicionada.

Objetivos específicos
Áreas acessíveis a todas as pessoas (alunos, funcionários ou público em geral) para o interior do edifício, pelo menos o acesso ao piso térreo de cada um:

• Na entrada do edifício de cada uma das escolas, e no acesso ao e no recreio das mesmas: designadamente rampas de acesso adossadas aos edifícios de cada uma das escolas, a partir do respetivo recreio e nalguns casos, nos lancis, passadeiras e respetivos rampeamentos até ao portão ou do portão até ao edifício da escola, como por exemplo na Escola do Faralhão, de forma a darem resposta às NTA do DL 163/2006.
• Na envolvente próxima da entrada do edifício Ciprestes e do Complexo Municipal de Atletismo de Setúbal e no acesso aos mesmos, quer para quem se desloca a pé, quer para quem se desloca em veículos automóveis; Áreas acessíveis em todo o piso térreo de cada um destes edifícios e espaço exterior do Complexo de Atletismo, criando áreas de permanência, de atendimento, instalação sanitária pública, guiché de atendimento e instalações sanitárias para os atletas devidamente equipadas, assim como acesso ao edifício de Complexo de Atletismo rampeado e corrimão na escada de acesso frente à porta dos atletas, que cumprem as Normas Técnicas de Acessibilidades do DL 163/2006 acima referido, aumentando as áreas acessíveis com pequenas obras.

CARATERIZAÇÃO SUCINTA DAS OBRAS A EXECUTAR

Escolas:
As obras a executar nas escolas remetem para a construção de rampas de acesso aos edifícios, a partir do recreio, em massame de betão com rede metálica tipo malhasol, com prévia camada de toutvenant, e acabamento em aglomerado de pedra ou calçada, com aquisição e montagem de guardas metálicas de proteção, com todos os acessórios incluídos e incluindo pinturas. Estão ainda incluídas nas obras das escolas trabalhos de demolições de pavimentos, degraus e lancis. E incluídos alguns trabalhos de construção de muretes. Para acesso às instalações sanitárias autónomas das escolas, estão previstas pequenas rampas metálicas, de acordo com o descrito no mapa de quantidades de trabalhos e nos desenhos de pormenor. Em alguns casos inclui-se o rebaixo de lancis, colocação com prévia remoção, de calçada de vidraço ou de lajetas cimentícias coloridas.

Edifício Ciprestes e envolvente exterior:

Para este edifício estão previstas obras de espaço público na envolvente próxima, e no piso térreo do mesmo. No espaço público propõem-se trabalhos de demolições, construção e pinturas, nomeadamente demolição de lancis e remoção, para posterior aproveitamento, de calçada. Estão previstos trabalhos de execução de rampa de acesso, de pinturas e sinalética. Estão previstos trabalhos no estacionamento que incluem trabalhos com calçada de vidraço e cubos de calcário, e para a sinalização, alteração de sinalização existente com colocação de nova sinalização, com trabalhos de remoção de maciços e construção de novos maciços, respetivamente. Estão ainda incluídos trabalhos de remoção e colocação de pilaretes metálicos com respetivos maciços. Dentro do edifício será alvo de intervenção a instalação sanitária de acesso ao público de modo a que sejam cumpridas as NTA do DL 163/2006, nomeadamente o vão de acesso à instalação sanitária, com prévias demolições, e construção de paredes em sistema tipo “pladur” ou equivalente, e respetivas pinturas, a colocação com fornecimento de porta de correr, incluindo todos os acessórios e acabamentos. No acesso a tardoz, pelo parqueamento automóvel dentro do edifício, serão também feitas obras de rampeamento na entrada para acesso a pessoas com mobilidade reduzida: a execução de pequena rampa implica a remoção da calçada existente e a sua reposição com prévia colocação de bases, de acordo com projeto de execução/ Tomo VIII. O mobiliário de alguns compartimentos, prevê-se que seja adaptado conforme peças de desenho do projeto.

Complexo Municipal de Atletismo de Setúbal:

Para este edifício estão previstas obras de espaço público na envolvente próxima, e no piso térreo do mesmo. No espaço público propõem-se trabalhos de demolições, construção e pinturas, nomeadamente demolição de lancis e remoção, para posterior aproveitamento, de calçada. Estão previstos trabalhos de execução de rampa de acesso. E de pinturas e sinalética estão previstos trabalhos no estacionamento que incluem trabalhos com calçada de vidraço e cubos de calcário, e para a sinalização, alteração de sinalização existente com colocação de nova sinalização, com trabalhos de remoção de maciços e construção de novos maciços, respetivamente. Para que os atletas com mobilidade reduzida possam aceder ao interior dos espaços a eles destinados propos-se o rampeamento da entrada dos atletas e a execução de obra de adaptação da receção onde se faz o atendimento, para vencimento do ressalto com mais de 2cm. O guiché da receção e compra de bilhetes não contempla a possibilidade de atendimento a pessoas em cadeira de rodas dada a elevada altura do parapeito existente, a inexistência de uma base de apoio e alcance para receção de uma pessoa com mobilidade condicionada a cadeira de rodas e a elevada altura do vidro e abertura que permite a visualização e receção de documentação. Assim, vai ser aberta uma parte da parede, até à altura regulamentar, e será colocado um tampo em lamelado de madeira folheada com apoios laterais e substituído o vidro por outro, mais amplo, e com nova caixilharia.

Páginas relacionadas

Visita à obra de construção dos primeiros 48 fogos de renda acessível dos mil que o IHRU tem previsto edificar em Setúbal
Obras
Saiba mais
Obras Municipais
Obras Municipais
Saiba mais
União Europeia | Bandeira
Obras Municipais Financiadas
Saiba mais
Avenida dos Ciprestes - Repavimentação
Rede Viária | Administração Direta
Saiba mais
SOS SETÚBAL
CIDADANIA ATIVA

Contamos consigo para gerir o dia a dia de Setúbal.

Envie a sua participação, contributo ou ocorrência para que os serviços municipais possam responder rapidamente à sua solicitação.

Todos os campos são de preenchimento obrigatório
Câmara Municipal de Setúbal