loader-image
temperature icon 14°C
Qualidade do Ar Qualidade do Ar

PIH – Programa de Intervenção em Habitações | Apartamento D12, Avenida da Bela Vista

Execução de um apartamento/habitação camarária para melhoria da acessibilidade e a criação de soluções construtivas e técnicas adequadas a pessoas com mobilidade condicionada
Entrega das primeiras casas reabilitadas no Forte da Bela Vista

CONSIGNAÇÃO

Fevereiro de 2024

CONCLUSÃO

Setembro de 2025

INVESTIMENTO

15.792,93 €
(acresce o IVA à taxa legal em vigor)

GÉNERO

Empreitada.
Obra adjudicada a Tecnorem – Engenharia e Construções, S.A

Vantagens
da Intervenção

Garantir a acessibilidade aos moradores em toda a habitação Ap. D12 e até à habitação, nomeadamente aos 2 moradores com incapacidades

Resumo
da Intervenção

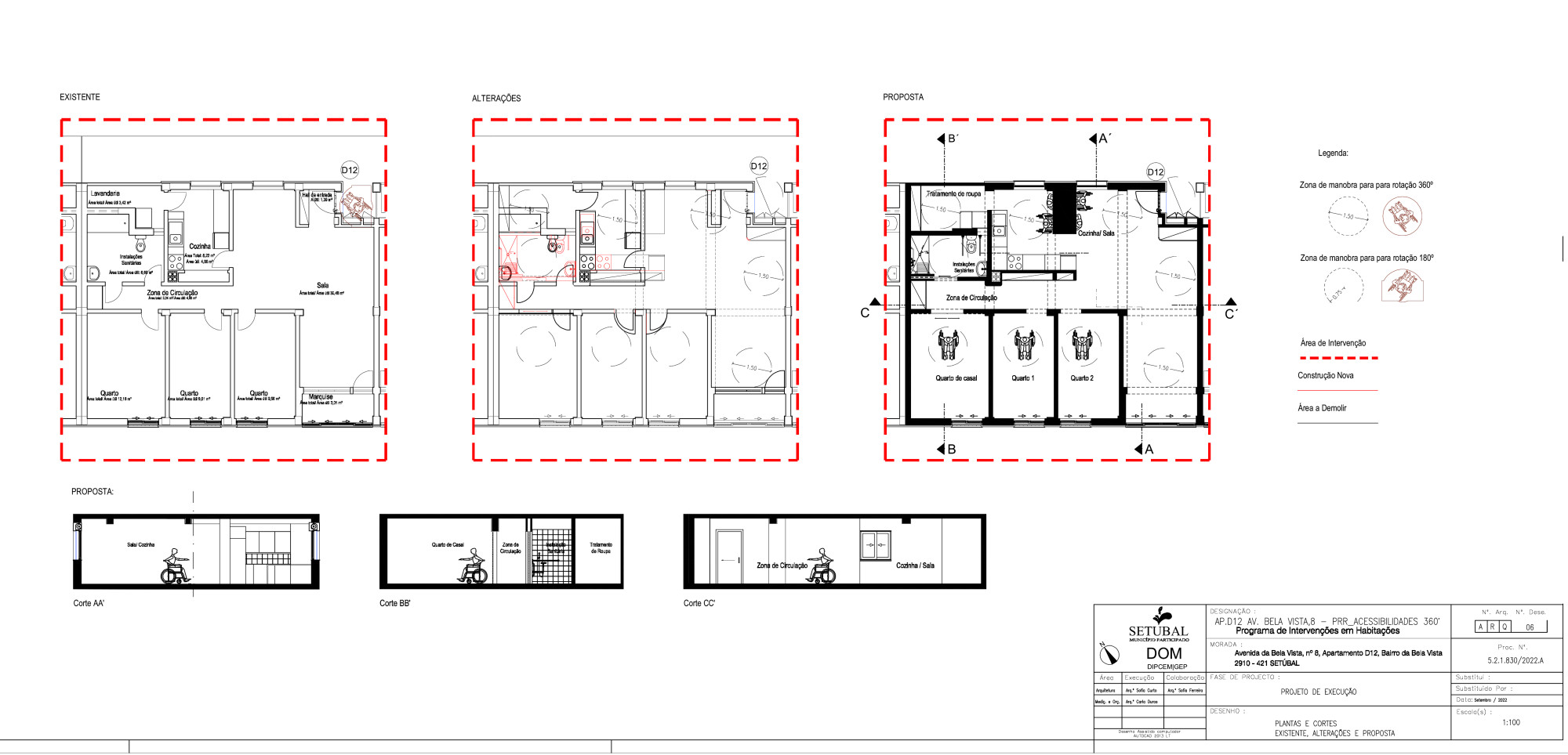
O presente documento refere-se ao “Projeto de Acessibilidades”.

Execução de um apartamento/habitação camarária que se encontra arrendado a uma família constituída por uma mãe e dois filhos com doença degenerativa, ambos os filhos com 94% de Incapacidade Multiuso.

A habitação localiza-se no Bairro da Bela Vista. O projeto integra a candidatura da Câmara Municipal de Setúbal ao Programa de Intervenções nas Habitações (PIH), integrado na Componente 3 – Respostas Sociais, Investimento RE-C03-i02: Acessibilidades 360°, no âmbito do PRR, no período de programação de 2021-2025.

O PIH visa a promoção da acessibilidade e a criação de soluções construtivas e técnicas adequadas a pessoas com mobilidade condicionada, com incapacidade igual ou superior a 60%, no acesso e na fruição das suas habitações, mediante aplicação das Normas Técnicas de Acessibilidade (NTA) previstas em anexo ao Decreto-Lei n.º 163/2006, de 8 de agosto, na sua redação atual, e tem o objetivo de apoiar intervenções, especificamente relacionadas com a condição de deficiência em concreto – neste caso 2 moradores no Ap. D12 com doença degenerativa de 94% de incapacidade cada um, (como atrás referido) em, pelo menos, 1.000 habitações. Este projeto responde ao definido em sede de candidatura, nomeadamente nas peças desenhadas com Pormenor Construtivo e Plano de Acessibilidades.

A área tornada acessível é igual à área útil do apartamento 88,87 m², com uma área de obra de 30,84 m², ambas as medidas em plano horizontal.

Propõe-se a realização das obras de fundo: do acesso à habitação, da cozinha e da casa de banho, bem como no acesso/vãos para todos os compartimentos; Abre-se a marquise à sala, onde atualmente os dois irmãos não conseguem aceder, e reforça-se esta parede com impermeabilização e isolamento térmico pelo interior conforme pormenor construtivo apresentado.

Estas obras anulam as correspondentes na Candidatura em curso para o Bairro da Bela Vista, e que inclui este apartamento (D12, do Lote 51), ao “Investimento RE-C02-i01 – 1.º Direito, Programa de Apoio ao Acesso à Habitação”.

Só fazem parte da candidatura ao Programa de Apoio ao Acesso à habitação – 1.º Direito as obras no exterior desta habitação e, caso alguma obra no interior da habitação esteja prevista, só remeterá para pintura de paramentos não previstos neste projeto e para a substituição de pavimentos no seu interior que não façam parte da presente proposta, como o caso da entrada, corredor, quartos e sala com marquise, esta último compartimento passará, como atrás referido, a fazer parte da sala, dado que os seus residentes não lhe acedem.

Como se encontra a casa atualmente, apenas a mãe dos outros dois residentes consegue aceder à marquise da sala. O acesso ao apartamento D12 é feito atualmente a partir da rua – Av. da Bela Vista –, pelo n.º 10, ou seja, pelo piso térreo. Por ser muito mais confortável e funcional, por indicação camarária, o acesso continuará a fazer-se por esta entrada no edifício. Apesar de no projeto já estarem previstas infraestruturas para colocação de plataforma elevatória para escada de tiro de acesso através da porta n.º 8 desta avenida e o fecho, por questões de segurança da área de entrada nos edifícios, vai ser fornecida chave aos moradores do Ap.D12 para acederem pela porta 10 do edifício.

O acesso ao Ap. D12, ao nível do piso térreo não oferece Barreiras Arquitetónicas desde o arruamento até à porta de entrada no mesmo, tendo a proposta sido orientada pela implantação das Normas Técnicas de Acessibilidade de acordo com o Aviso da Candidatura. Em Projeto de Execução foram os seguintes documentos adotados como orientadores das opções de conceção de pormenores, nomeadamente as que se referem ao interior da habitação:

• DL 163_2006 de 08 de agosto, com as alterações e adaptações subsequentes;

• Guia Acessibilidade e Mobilidade para todos _ INR, 2009.NOTA: Texto retirado do Projeto de Arquitetura.

Páginas relacionadas

Visita à obra de construção dos primeiros 48 fogos de renda acessível dos mil que o IHRU tem previsto edificar em Setúbal
Obras
Saiba mais
Obras Municipais
Obras Municipais
Saiba mais
União Europeia | Bandeira
Obras Municipais Financiadas
Saiba mais
Avenida dos Ciprestes - Repavimentação
Rede Viária | Administração Direta
Saiba mais
SOS SETÚBAL
CIDADANIA ATIVA

Contamos consigo para gerir o dia a dia de Setúbal.

Envie a sua participação, contributo ou ocorrência para que os serviços municipais possam responder rapidamente à sua solicitação.

Todos os campos são de preenchimento obrigatório
Câmara Municipal de Setúbal