loader-image
temperature icon 15°C
Qualidade do Ar Qualidade do Ar

Centro Escolar Barbosa du Bocage

Obra de alteração e ampliação do Centro Escolar Barbosa du Bocage
Obra de alteração e ampliação do Centro Escolar Barbosa du Bocage

CONSIGNAÇÃO

Setembro de 2024

PREVISÃO PARA CONCLUSÃO

330 dias

INVESTIMENTO

5 359 890,00 €
(acresce o IVA à taxa legal em vigor)

GÉNERO

Empreitada.
Obra adjudicada a Alberto Couto Alves, S.A.

Vantagens
da Intervenção

Acrescentar valor e mais condições de ensino à rede escolar pública na esfera do pré-escolar e 1.º ciclo e valorizar o projeto educativo do agrupamento de escolas. Implica ainda um conjunto de beneficiações no espaço público envolvente àquele estabelecimento de ensino

Resumo
da Intervenção

Obra de alteração e ampliação do Centro Escolar Barbosa du Bocage, localizado na Avenida de Angola, União de Freguesias de Setúbal. A intervenção tem os seguintes objetivos programáticos:

> A construção de um nova Escola Básica (EB) do 1º Ciclo com Jardim de Infância, com 8 salas de aula e 3 salas de atividades, tendo como base o projeto elaborado para a escola EB1/JI Luísa Todi em Setúbal em 2008;


> A construção de um Pavilhão Polivalente, servindo preferencialmente a nova EB do 1º Ciclo, e colmatando as necessidades pontuais da EB do 2º e 3º Ciclo existente;


> A construção de uma Portaria e Cobertura Exterior no novo acesso à Escola Básica do 2º e 3º Ciclo (existente);

> A construção da Portaria de acesso à nova EB do 1º Ciclo com Jardim de Infância, do Arrumo Exterior adjacente à portaria, e de uma Cobertura Exterior entre a Portaria e a Escola Básica do 1º Ciclo.

SITUAÇÃO EXISTENTE

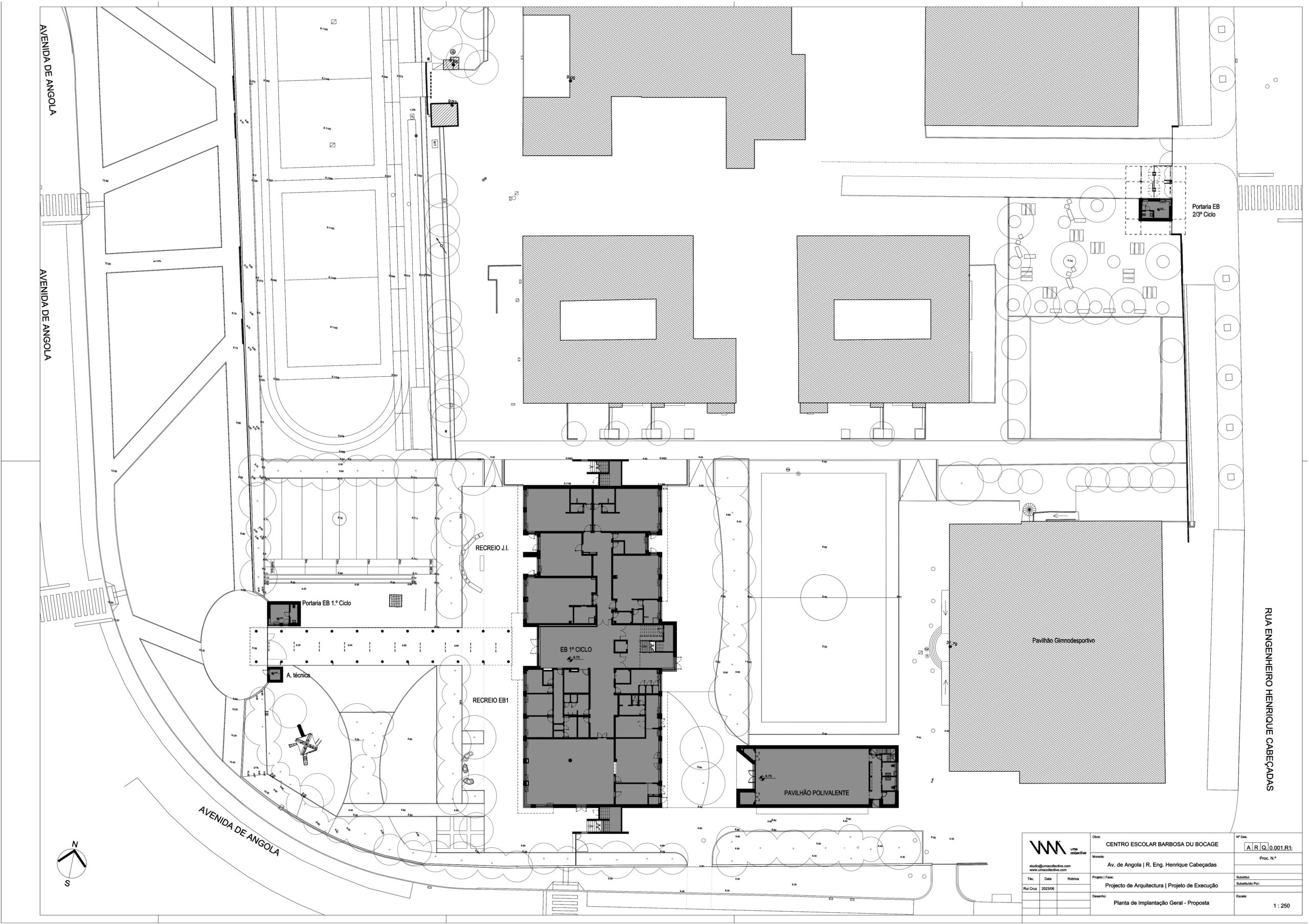
O Centro Escolar onde se irão implantar as novas construções encontra‐se localizado na Av. de Angola e R. Eng. Henrique Cabeçadas, União de Freguesias de Setúbal, concelho de Setúbal.

O Centro Escolar atual compreende uma Escola Básica do 2º e 3º Ciclo, que não será intervencionada no âmbito da presente obra.

Presume‐se que a construção dos edifícios remonte aos anos 70, obedecendo a um modelo escolar de origem sueca, constituído por um Bloco Administrativo, quatro Blocos de Salas de Aula, 1 Bloco Oficinal e um Pavilhão Gimnodesportivo, com edifícios em estrutura em betão armado de arquitetura brutalista pontuado por panos em tijolo à vista.

PROPOSTA

A intervenção cumpre o princípio do Não Prejudicar Significativamente “Do No Significant Harm” (DNSH), não incluindo atividades que causem danos significativos a qualquer objetivo ambiental na aceção do Artigo 17.º do Regulamento (UE) 2020/852 do Parlamento Europeu e do Conselho (Regulamento da Taxonomia da UE) e assegurando o cumprimento da legislação ambiental aplicável a nível nacional e da União Europeia.

A intervenção prevê ainda que as necessidades energéticas das construções serão pelo menos 20% inferiores às requeridas para um edifício NZEB (Nearly Zero‐Energy Buildings), sendo estas necessidades cobertas em grande medida por energia proveniente de fontes renováveis, o que conduzirá a uma redução significativa das emissões para a atmosfera e à consequente melhoria da saúde pública.

A proposta de intervenção arquitetónica consiste globalmente no seguinte:

>Construção de uma Escola Básica do 1º Ciclo com Jardim de Infância;

> Construção de um Pavilhão Polivalente;

> Construção de uma Portaria e Cobertura Exterior no novo acesso à EB do 2º e 3º Ciclo (existente);

> Construção da Portaria de acesso à nova EB do 1º Ciclo com Jardim de Infância, do Arrumo Exterior adjacente à portaria, e de uma Cobertura Exterior entre a Portaria e a EB do 1º Ciclo;

> Reconversão da Portaria existente em arrumos exteriores.Descrevem‐se de seguida as características principais da proposta de intervenção Arquitetónica.

3.1 Programa

A intervenção prevê a implementação do seguinte programa para a Escola Básica do 1º Ciclo com Jardim de Infância:

> 8 Salas de Aula para o 1º Ciclo de Ensino Básico com acesso a compartimento de arrumos e Sala de Expressão Plástica com bancada e lavatório (estes dois compartimentos serão partilhados por cada par de salas de aula);

> 3 Salas de Atividades para ensino pré‐escolar, cada uma integrando instalação sanitária, zona de arrumos, zona de cabides e acesso direto ao logradouro;

> 1 Sala de Prolongamento para o ensino Pré‐Escolar;

> 1 Sala de Prolongamento para o 1º Ciclo/ Biblioteca;

> 1 Centro de Apoio à Aprendizagem (antiga Unidade de Ensino Estruturado) para alunos com necessidades educativas especiais, incluindo instalação sanitária adaptada a pessoas de mobilidade condicionada;

> Áreas complementares e de apoio ao funcionamento da escola, nomeadamente: Refeitório para 200 alunos do 1º Ciclo e 75 do Jardim de Infância, que deverá funcionar em turnos; núcleo da Cozinha com confeção própria; Sala de Informática; núcleos de Instalações Sanitárias por cada piso; Instalações Sanitárias acessíveis; Salas de Professores; Sala de Pessoal não docente; duas Salas de Apoio; Salas de Arrumos e Áreas Técnicas.Em relação ao Pavilhão Polivalente, prevê‐se o seguinte programa:Sala Polivalente/ginásio;

> 2 instalações sanitárias adaptadas a pessoas com mobilidade condicionada;

> Zona de Cabides;

> Arrumos e área técnica.
Prevê‐se ainda criação de 2 novas portarias de acesso ao Centro Escolar, ambas com uma instalação sanitária e zonas exteriores cobertas:

> Portaria destinada ao controle de acessos da EB do 2º e 3º Ciclo existente, com instalação de torniquetes acessíveis a pessoas de mobilidade reduzida;

> Portaria destinada à futura EB do 1º Ciclo com Jardim de Infância. A portaria existente será alvo de uma pequena intervenção, que irá permitir a sua reconversão para arrumos afetos aos espaços exteriores da Escola.

3.2 Acessos, Fachadas e Coberturas

A proposta de intervenção arquitetónica para a nova Escola Básica tem como base o projeto da EB1/JI Luísa Todi, um edifício de 2 pisos mais piso técnico, de planta retangular, em relação ao qual foram introduzidas algumas melhorias programáticas e funcionais, nomeadamente:> Alteração das 2 escadas de emergência localizadas nos topos do edifício, que constituíam volumes fechados e como tal convidativos à sua ocupação permanente com áreas de arrumos que inviabilizam o uso de emergência;

> Melhoria do átrio de entrada no edifício, alterando a localização da escada de acesso ao piso 1 para o tardoz;

> Melhoria da solução para as 2 claraboias existentes no piso 1, visto que introduzem uma grande carga térmica no edifício;

> Melhoria do acesso à cobertura, através da criação de uma escada que permita um acesso mais fácil para a realização dos trabalhos de manutenção dos equipamentos de AVAC a colocar na cobertura. O limite do recinto escolar será ampliado para poente, implicando a alteração do logradouro do recinto e a alteração do espaço público, a desenvolver em sede de projeto de paisagismo. Em relação aos novos acessos ao Centro Escolar, prevê‐se o seguinte: Criação de uma nova entrada viária a sul do recinto, a partir da Av. de Angola, para cargas e descargas da nova EB do 1º Ciclo;

> Criação de uma nova entrada pedonal a poente, para acesso à nova EB do 1º Ciclo;

> Criação de uma nova entrada viária e pedonal a nascente, pela R. Eng. Henrique Cabeçadas, para acesso à EB do 2º e 3º Ciclo.Em relação à imagem das fachadas das novas construções ‐ edifício da EB do 1º Ciclo, Pavilhão Polivalente e Portarias ‐, é de referir que a intervenção, de acordo com o apresentado procurou a harmonização com a imagem arquitetónica das edificações pré‐existentes, nomeadamente pela introdução de tijolo de burro de face à vista nos embasamentos (garantindo simultaneamente uma maior proteção contra impactos), e introdução de betão à vista em palas e outros elementos exteriores. Descrevem‐se de seguida os dois tipos principais de fachadas propostas para as novas construções:> Embasamento com sistema de parede dupla composta por: tijolo de burro de face à vista com 115mm de espessura tipo “Vale da Gândara”; caixa de ar com espessura variável (mínimo de 35mm); isolamento térmico com 40mm em poliuretano projetado; bloco de betão térmico “tipo Artebel BTE”; reboco com 2cm na face interior.

> Fachada tipo ETICS composta por: isolamento térmico em placas de lã de vidro com 80mm de espessura, tipo “weber.term comfort” com acabamento tipo “weber.plast decor” na cor branco; bloco de betão térmico tipo “Artebel BTE”; reboco com 2cm na face interior. Considerando a importância do controlo solar e de luminosidade nos espaços educativos, propõe‐se que os compartimentos da EB1/JI sejam dotados de estores de rolo interiores e sombreamentos solares exteriores: Estores exteriores com lâminas de alumínio orientáveis em todas as salas da aula e atividades, tipo “WAREMA modelo E80A6S”, operados eletricamente de forma individual, todos ligados a sensor de chuva e vento de forma a permitir a recolha automática;

> Palas de sombreamento em GFRC no piso térreo e em betão à vista no piso 1;

> Sistema de grelhas horizontais de alumínio nas 2 claraboias da cobertura da EB1/JI, tipo “DUCOSUN 100C framed”.Em relação às coberturas, propõe‐se os dois seguintes tipos principais:> Cobertura plana com a seguinte constituição: impermeabilização com dupla membrana de betume polímero APP na cor cinza claro, tipo “Imperalum Polyxis 30+Polyxis R40”; isolamento térmico em placas de lã de rocha com 100mm de espessura e 150kg/m3 recobertas a betume na face superior, tipo “Coberlan B50”; barreira para‐vapor; camada de forma com espessura variável; laje de betão conforme projeto de estabilidade.

> Cobertura tipo deck (pavilhão polivalente e volumes emergentes na cobertura da EB1) com a seguinte composição: impermeabilização com dupla membrana de betume polímero APP na cor cinza claro; isolamento térmico em placas de lã de rocha com 100mm de esp.; barreira para‐vapor; chapas perfiladas em aço S280GD sobre estrutura metálica conforme projeto de estabilidade.

> As caixilharias propostas serão em alumínio anodizado com corte térmico incorporando vidro duplo. Propõe‐se ainda a criação pontual de iluminação zenital através de envidraçados em alumínio com corte térmico e vidro duplo e de tubos solares tipo “Sola Tube”.PLANO DE

ACESSIBILIDADES

A proposta de intervenção arquitetónica para as edificações de uso educacional visa dar cumprimento à legislação em vigor e às boas práticas projectuais, em respeito pelo Decreto‐Lei n.º 163/2006, alterado pelo Decreto‐Lei n.º 136/2014, Decreto‐Lei nº 125/2017 e Decreto‐Lei nº 95/2019 de 18 de julho, tal como demonstrado nas peças desenhadas do Plano de Acessibilidades.

Prevê‐se a criação de um percurso acessível coincidente com o percurso dos restantes utilizadores, assegurando um percurso para pessoas com mobilidade condicionada sem ressaltos superiores a 2cm de altura desde as entradas, em conformidade com as seguintes secções do Anexo do Decreto‐Lei n.º 163/2006:Secção 2.1 – Percurso Acessível, satisfazendo o especificado no capitulo 4 do mesmo Anexo;
Secção 2.2 – Átrios, incluindo uma zona de rotação de 360º e portas de entrada com largura útil superior a 87cm;
Secção 2.3 – Patamares, galerias e corredores, com largura não inferior a 1,2m;
Secção 2.4 – Escadas, com 17cm de espelho e 30cm de cobertura, incluindo faixa antiderrapante, com corrimão de ambos os lados entre os 85 e 90cm;
Secção 2.6 – Ascensores, incluindo cabine com 1,1 por 1,4m livres;
Secção 2.9 – Instalações Sanitárias de Utilização Geral, para uso não frequente, incluindo barras de apoio rebatíveis para acesso às sanitas, bases de duche de nível com o pavimento com assentos rebatíveis;
Secção 3.5 – Edifícios e instalações escolares e de formação, com corredores de circulação nos percursos de alunos com largura não inferior a 1,8m;
Secção 4 – Percurso Acessível.

Páginas relacionadas

Visita à obra de construção dos primeiros 48 fogos de renda acessível dos mil que o IHRU tem previsto edificar em Setúbal
Obras
Saiba mais
Obras Municipais
Obras Municipais
Saiba mais
União Europeia | Bandeira
Obras Municipais Financiadas
Saiba mais
Avenida dos Ciprestes - Repavimentação
Rede Viária | Administração Direta
Saiba mais
SOS SETÚBAL
CIDADANIA ATIVA

Contamos consigo para gerir o dia a dia de Setúbal.

Envie a sua participação, contributo ou ocorrência para que os serviços municipais possam responder rapidamente à sua solicitação.

Todos os campos são de preenchimento obrigatório
Câmara Municipal de Setúbal