loader-image
temperature icon 14°C
Qualidade do Ar Qualidade do Ar

Programa de Intervenções em Habitações (PIH) Acessibilidades 360º – Avenida da Bela Vista, Bloco 8-12, R/C

Implementação de soluções adequadas a pessoas com deficiência e/ou incapacidade permanente
Bairro da Bela Vista

CONSIGNAÇÃO

Outubro de 2025

PREVISÃO PARA CONCLUSÃO

60 dias

INVESTIMENTO

10 573,50 € (IVA incluído)

GÉNERO

Empreitada.
Obra adjudicada a Tecnorém, S.A.

Vantagens
da Intervenção

Promoção da acessibilidade e a criação de soluções construtivas e técnicas adequadas a pessoas com deficiência e/ou incapacidade permanente com grau igual ou superior a 60% no acesso e na fruição das suas habitações.

Resumo
da Intervenção

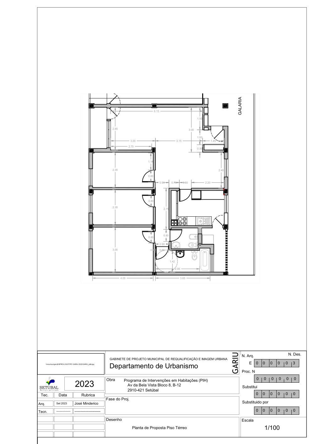
A presente intervenção está incluída no Projeto de Acessibilidades, ao abrigo do Programa de Intervenções em Habitações (PIH), integrado na Componente 3 – Respostas Sociais, Investimento RE-C03-i02: Acessibilidades 360º, no âmbito do PRR, no período de programação de 2021-2025. A habitação própria está localizada na Avenida da Bela Vista Bloco 8, B-12, R/C, código postal 2910-421, freguesia de S. Sebastião.

O PIH visa a promoção da acessibilidade e a criação de soluções construtivas e técnicas adequadas a pessoas com deficiência e/ ou incapacidade permanente com grau igual ou superior a 60% no acesso e na fruição das suas habitações, mediante aplicação das Normas Técnicas de Acessibilidade (NTA) previstas em anexo ao Decreto-Lei n.º 163/2006, de 8 de agosto, na sua redação atual, e tem o objetivo de apoiar intervenções, especificamente relacionadas com a condição de deficiência em curso, neste caso uma moradora com uma incapacidade permanente global de 80%, suscetível de variação futura.

Esta intervenção responde ao definido em sede de candidatura, nomeadamente, nas peças desenhadas com Plano de Acessibilidades.

A intervenção proposta para a fração habitacional assenta em garantir a acessibilidade e a fruição dos moradores a toda a habitação, assim como a melhoria da qualidade da funcionalidade das suas tarefas diárias com a melhoria de acesso aos equipamentos de cozinha e ao interior dos compartimentos de arrumação, mobilidade entre os espaços comuns e dentro da instalação sanitária existente.

Serão realizados trabalhos de demolição de paredes interiores que permitam o alargamento dos vãos de portas interiores de 70cm de largura para 80cm, e que incluirão a retificação de paredes, pavimentos, rodapés e consequentes trabalhos de pintura. Está prevista a demolição da parede da instalação sanitária e a anulação do roupeiro existente no corredor, de modo a que a instalação sanitária seja ampliada e permita a rotação de 360º de uma cadeira de rodas. A anulação do bidé existente e a deslocação do lavatório permitirá uma maior mobilidade dentro do compartimento.

Será realizado o alargamento dos vãos das portas interiores de 70cm para 80cm de largura, a substituição das peças sanitárias da instalação sanitária completa, a colocação de barras de apoio e de divisória de duche, assim como a instalação de kit de emergência de WC, incluindo fixações, ligações, todos os acessórios e trabalhos complementares necessários, executados, conforme peças escritas, peças desenhadas e indicações do projetista e do fabricante.

Todas as intervenções cumprirão com o estabelecido nas Normas Técnicas de Acessibilidade (NTA) previstas no anexo ao Decreto-Lei n.º 163/2006, de 8 de agosto.

Páginas relacionadas

Visita à obra de construção dos primeiros 48 fogos de renda acessível dos mil que o IHRU tem previsto edificar em Setúbal
Obras
Saiba mais
Obras Municipais
Obras Municipais
Saiba mais
União Europeia | Bandeira
Obras Municipais Financiadas
Saiba mais
Avenida dos Ciprestes - Repavimentação
Rede Viária | Administração Direta
Saiba mais
SOS SETÚBAL
CIDADANIA ATIVA

Contamos consigo para gerir o dia a dia de Setúbal.

Envie a sua participação, contributo ou ocorrência para que os serviços municipais possam responder rapidamente à sua solicitação.

Todos os campos são de preenchimento obrigatório
Câmara Municipal de Setúbal