loader-image
temperature icon 14°C
Qualidade do Ar Qualidade do Ar

Refúgio Climático da Várzea

Concretização de mais uma fase do Parque Urbano da Várzea da Ribeira do Livramento
Refúgio Climático da Várzea

CONSIGNAÇÃO

Abril de 2025

PREVISÃO PARA CONCLUSÃO

180 dias

INVESTIMENTO

716 520,93 € (IVA incluído)

GÉNERO

Empreitada.
Obra adjudicada a Mota-Engil Ativ – Gestão e Manutenção de Ativos, S.A.

Vantagens
da Intervenção

O projeto irá permitir implementar uma infraestrutura verde e azul, numa área de intervenção de cerca de 14ha, e que pretende garantir um “continuum naturale”, suportado na valorização da Ribeira do Livramento e da sua várzea, dos serviços de ecossistema presentes e a potenciar, na captação de carbono e na regulação de efeitos climáticos extremos, designadamente as cheias urbanas e as ondas de calor.

Resumo
da Intervenção

A intervenção em apreço contribuirá de forma significativa para reforçar a resiliência climática da cidade de Setúbal e das suas comunidades residentes, através da consolidação do Parque Urbano da Várzea da Ribeira do Livramento enquanto infraestrutura verde e azul, designadamente pela função de regulação dos efeitos das cheias urbanas e da ilha de calor urbano. Pretende-se com a intervenção a realizar a criação/consolidação de um refúgio climático para as comunidades locais, mediante o reforço do coberto vegetal, valorizando as espécies autóctones e os serviços de ecossistema prestados (Regulação: regulação do ar, regulação climática, moderação de eventos extremos, regulação dos fluxos de água, controle da erosão e polinização; Suporte: manutenção dos ciclos de vida; e Cultural: informação estética, oportunidades de atividades recreativas e turismo, inspiração para cultura, arte e design, experiência espiritual e informação para desenvolvimento cognitivo), dotando este espaço das condições necessárias à sua manutenção e usufruto.
Assim, as ações propostas sintetizam-se no seguinte:

1) Construção de um sistema de rega automatizado, que permita o desenvolvimento do coberto vegetal;
2) Sementeira de prados, prados floridos e relvados;
3) Plantação de arbustos, privilegiando as espécies autóctones;
4) Colocação de mobiliário urbano, designadamente bancos, papeleiras e bebedouros, dotando o espaço das condições necessárias ao usufruto da população como refúgio climático e área de recreio e lazer.

O objetivo geral da intervenção consiste na criação de uma infraestrutura verde (“refúgio”) que permita combater o efeito da “ilha de calor urbano”, potenciando a capacidade de adaptação da população às alterações climáticas.
Este objetivo geral é desdobrado num conjunto de objetivos específicos, designadamente:

> Garantir a continuidade ecológica da ribeira do Livramento;
> Valorizar os habitats existentes e os serviços de ecossistema;
> Densificar o coberto vegetal com espécies arbóreas e arbustivas autóctones;
> Promover a captação de carbono (redução de 425,47 ton. CO2eq, em 20 anos);
> Promover a eficiência hídrica e energética;
> Contribuir para a mitigação das cheias urbanas e do efeito de ilha de calor urbano;
> Potenciar a utilização como refúgio climático e área de recreio e lazer.

ENQUADRAMENTO ESTRATÉGICO

A presente intervenção contribui para a concretização de mais uma fase do Parque Urbano da Várzea da Ribeira do Livramento, um projeto estratégico que irá permitir implementar uma infraestrutura verde e azul, numa área de intervenção de cerca de 14 ha, e que pretende garantir um “continuum naturale”, suportado na valorização da Ribeira do Livramento e da sua várzea, dos serviços de ecossistema presentes e a potenciar, na captação de carbono e na regulação de efeitos climáticos extremos, designadamente as cheias urbanas e as ondas de calor.
Esta infraestrutura integra a Estrutura Ecológica Municipal consignada na Revisão do Plano Diretor Municipal, em fase final de aprovação (ratificado pela Resolução do Conselho de Ministros n.º 22/2024, de 29 de janeiro), correspondendo igualmente a uma área e corredor vital na Rede Ecológica Metropolitana definida no Plano Regional de Ordenamento do Território da Área Metropolitana de Lisboa, aprovado pela Resolução do Conselho de Ministros n.º 68/2002, de 8 de abril.

A intervenção em apreço enquadra-se nas linhas estratégicas definidas por um conjunto relevante de instrumentos de política para a ação climática, contribuindo de forma inequívoca para a concretização dos objetivos aí traçados, designadamente:

> Projeto europeu Bridging European and Local Climate Action – BEACON;
> Estratégia Nacional de Adaptação às Alterações Climáticas (ENAAC)
> Plano Metropolitano de Adaptação às Alterações Climáticas (PMAAC-AML);
> PLAAC–Arrábida. Planos Locais de Adaptação às Alterações Climáticas dos Municípios de Setúbal, Palmela e Sesimbra;
> Plano Municipal de Ação Climática de Setúbal (em fase de consulta pública).

ANTECEDENTES

O Projeto do Parque Urbano da Várzea da Ribeira do Livramento tem vindo a ser implementado de forma evolutiva e por fases.
Das ações já realizadas, destacam-se as seguintes:

1) Execução das bacias de retenção que permitiram mitigar as consequências das cheias rápidas que afetam o centro da cidade de Setúbal (amortecimento da velocidade de escoamento superficial e redução da área inundável em cerca de 70%, face à cheia dos 100 anos). A intervenção hidráulica contemplou uma bacia de amortecimento com capacidade para reter 250.000 m³ de água, assim como a regularização do leito da ribeira do Livramento. O projeto de hidráulica assumiu um conjunto de intervenções significativas como as alterações topográficas do terreno que permitiram o escoamento e o encaixe do volume de água desejado, a criação de duas bacias de retenção de água, com origem na subida do caudal da Ribeira do Livramento e nas águas pluviais, faixas de escoamento de concentração e direcionamento das águas em direção às bacias, a regularização de taludes e a construção de muros de suporte à ribeira do Livramento, a montante da zona do Parque.
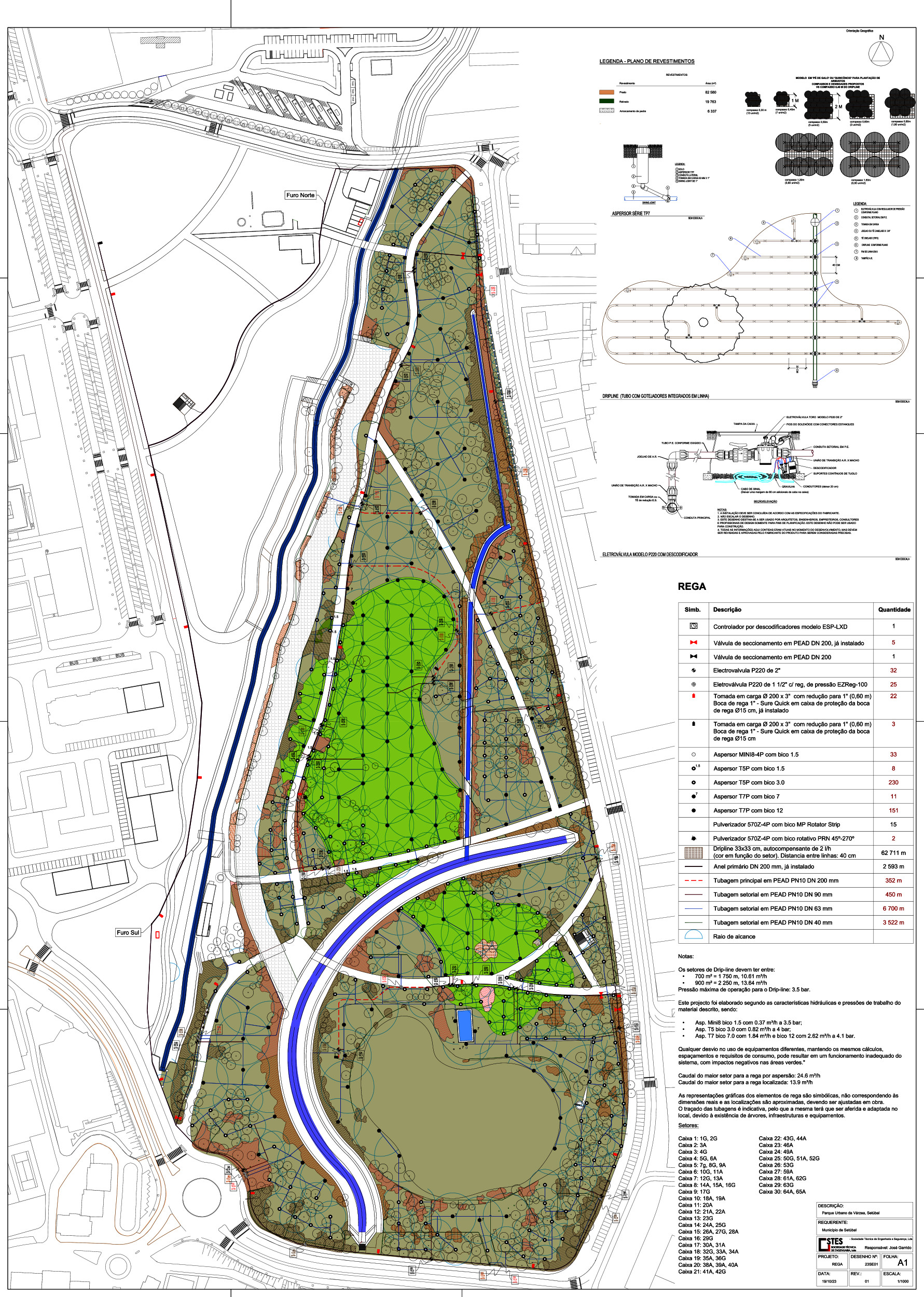
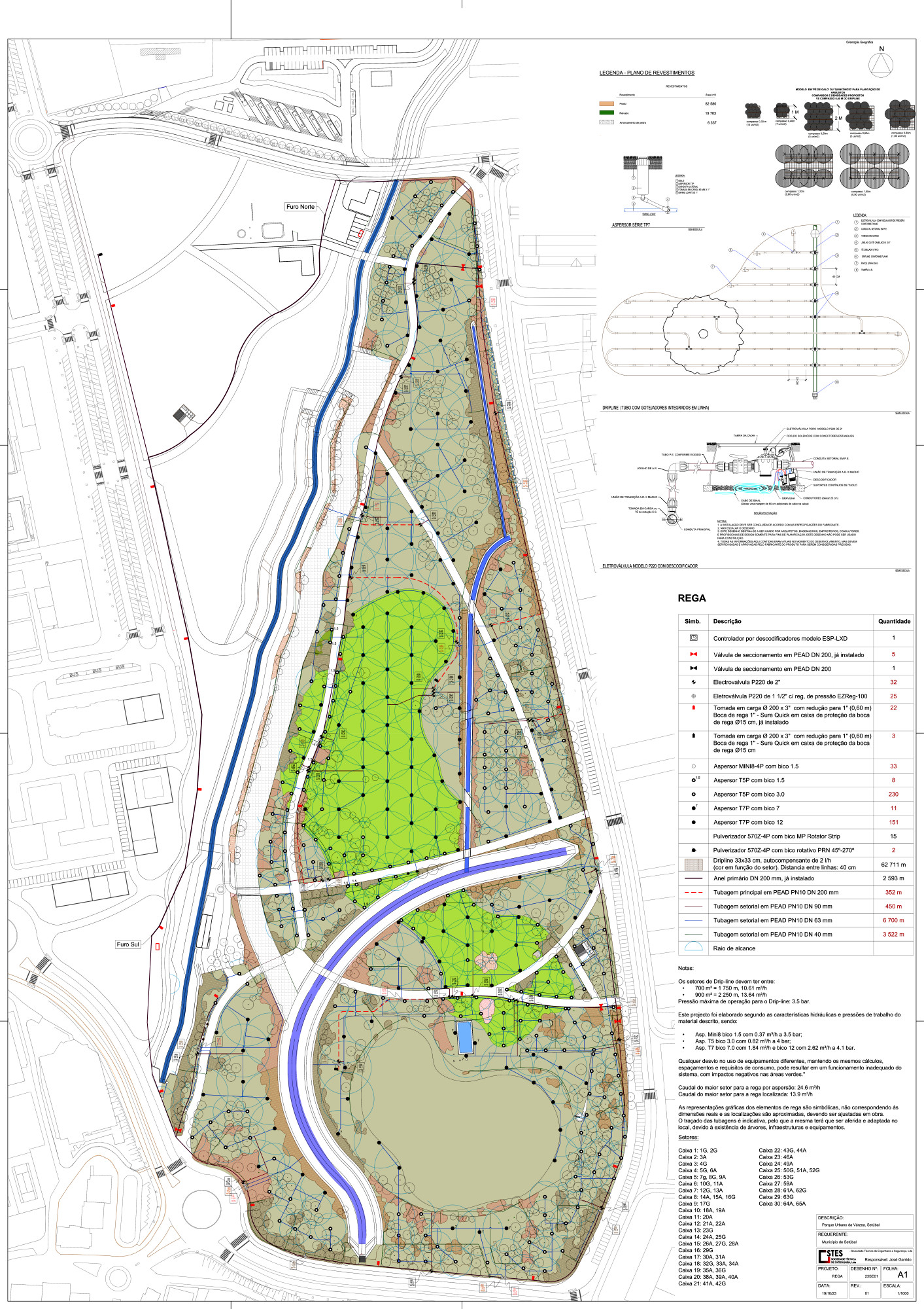
2) Construção de dois furos geodésicos que garantem o abastecimento de água a todo o parque e instalação do anel de rega primário de abastecimento numa extensão total de 2.592,54 metros de tubagem, munido por 7 válvulas de seccionamento e 24 bocas de rega. Estas infraestruturas resultam da necessidade de rega das espécies arbóreas e arbustivas a plantar na área de intervenção durante os primeiros anos de crescimento (projeto – poci-07-62g9-feder-181438 – candidatura 06/react-eu/2021 – apoio à transição climática e reabilitação da rede hidrográfica eixo vii-react-eu-feder).
3) Plantação de cerca de 1.290 árvores que contribuíram para prevenir a erosão do solo, promover a biodiversidade e mitigar o efeito da ilha de calor urbano. A estrutura arbórea é dominada pela vegetação das áreas ribeirinhas nomeadamente pelo Populus Alba, Fraxinus angustifolia e Populus nigra italica, a que se juntam os Acer campestres, mas também as quercíneas, nomeadamente o Quercus palustris e o Quercus faginea, espécies dominantes nas zonas envolventes da cidade (projeto – poci-07-62g9-feder-181438 – candidatura 06/react-eu/2021 – apoio à transição climática e reabilitação da rede hidrográfica eixo vii-react-eu-feder).
4) Manutenção e futura preservação dos elementos patrimoniais construídos mais relevantes relativos à presença de antigas quintas de recreio e produção, onde se destacam o aqueduto da Quinta de Prostes, o tanque de Rega situado na zona central Sul da Várzea, os três edifícios existentes, assim como poços, tanques e alguns troços de caleira e almacegas.
5) Construção de parte dos caminhos pedonais, que permitem a circulação provisória de pessoas e veículos de manutenção do parque, tendo sido formalizada a base e a sub-base dos mesmos, sem o acabamento final em betão poroso, conforme projetado. Ao mesmo tempo foram colocados candeeiros de iluminação pública (Led) e algumas papeleiras.

INTERVENÇÕES A REALIZAR

1.1- Rega
Para além do anel e bocas de rega já em construção, será implementado um sistema de rega automatizada, com recurso a aspersores, nas zonas de relvado e rega localizada nas zonas de arbustos e herbáceas. As peças desenhadas e peças escritas relativas ao projeto de execução da rede de rega, encontram-se em peças anexas a esta memória descritiva.
Toda a área não abrangida pela rega acima descrita, em particular os prados, não serão sujeitos a rega, pois são considerados revestimentos de sequeiro.

1.2- Revestimentos
Os revestimentos propostos para a área de intervenção são compostos por áreas de prado, relvado, áreas arbustivas, prado florido sobre as faixas de escoamento em enrocamento e áreas suplementares de apoio aos edifícios existentes e a áreas envolventes ao parque.
A sua distribuição vai ao encontro do enquadramento pretendido no projeto paisagístico elaborado inicialmente, criando momentos cenográficos caracterizadores de uma ideia total do Parque Urbano, mas igualmente de diversos momentos ao longo do atravessamento e fruição no Parque.

1.3- Plantação de Espécies Arbóreas e Arbustivas
Em termos de plantação de árvores, por ora, considera-se concluída a sua plantação, tal não invalida que no futuro, não se proceda à plantação de mais árvores, conforme interesse e necessidades pontuais. A estrutura arbórea é dominada pela vegetação das matas ribeirinhas nomeadamente pelo Populus Alba, Fraxinus angustifolia e Populus nigra italica, a que se juntam os Acer campestres, marcando os percursos e as zonas de estadia. Na envolvente do parque surgem as quercíneas nomeadamente o Quercus palustris, e o Quercus faginea, espécie dominante nas zonas envolventes da cidade. A vegetação arbustiva (17 180 un), a plantar, é dominada pela flora autóctone, em especial da serra da Arrábida conferindo deste modo resiliência ao espaço, diminuindo as suas necessidades hídricas e de manutenção, bem como promovendo a relação dos cidadãos de modo mais valorizado com a vegetação para além do mero crescimento natural.
Os maciços arbustivos e arbóreos, tem a função de enquadramento do parque e de preservação das espécies autóctones, reforçando as orlas do parque e criando margens de sombra passíveis de utilização.
As sementeiras procuram uma sustentabilidade do espaço, concentrando as áreas de prado (95 650 m²) nas zonas de maior carga, e os espaços relvados e regados (22 280 m²), imediatamente adjacentes.
Nas restantes zonas são utilizadas misturas floridas (76 173 m²), auxiliando a separação dos espaços e a sua sementeira em zonas de talude e colchão reno (8 109 m²).

1.4- Mobiliário Urbano
Do mesmo modo que os pavimentos pedonais e as travessias foram pensadas para suportarem as situações de cheias, também o mobiliário urbano teve em conta esse condicionalismo. Os bancos (12 unidades com e 19 unidades sem costas) são de linhas simples e austeras, em betão e com dimensões de 2,00 x 0,60 x 0,89 metros. A sua instalação considera a abrangência de todo o parque, ao mesmo tempo que convida à contemplação de vistas e a confraternização entre os utentes.
As papeleiras e os bebedouros acompanham a lógica definida para os bancos, estando previstas 39 unidades de papeleiras enquanto que os bebedouros serão colocados de acordo com a rede de abastecimento de água a propor.

Páginas relacionadas

Visita à obra de construção dos primeiros 48 fogos de renda acessível dos mil que o IHRU tem previsto edificar em Setúbal
Obras
Saiba mais
Obras Municipais
Obras Municipais
Saiba mais
União Europeia | Bandeira
Obras Municipais Financiadas
Saiba mais
Avenida dos Ciprestes - Repavimentação
Rede Viária | Administração Direta
Saiba mais
SOS SETÚBAL
CIDADANIA ATIVA

Contamos consigo para gerir o dia a dia de Setúbal.

Envie a sua participação, contributo ou ocorrência para que os serviços municipais possam responder rapidamente à sua solicitação.

Todos os campos são de preenchimento obrigatório
Câmara Municipal de Setúbal